Introduction
Calder Valley Community Land Trust and Connect Housing are in the process of creating 19 affordable rented homes and 23 affordable rented offices on the site of the former Ferney Lee Home for Older People.
The enterprise centre project is part of the £17.5M Todmorden Town Deal investment programme led by Todmorden Town Deal Board due to be completed by Spring 2026. The programme has been developed over several years of community consultation, and within it CVCLT has secured £3.9m to build and run a new community led Enterprise Centre (EC).
Both housing and offices will be built to very high environmental standards, in the case of housing we are building to the Passivhaus standard.
Our 3D virtual fly-through on YouTube will help visualise our plans.
Through CVCLT becoming the sponsor of the EC we will be able to deliver additional benefits:
- The EC will be owned by a community organisation, forever, focused on social impact rather than profit
- CVCLT has been able to negotiate the inclusion of 19 desperately needed affordable homes on the site
- The financial surplus from the EC will support the financial sustainability for CVCLT and will be invested in our current and new community projects
Planning permission was granted on 7th June 2024, full details are available on the Calderdale Planning portal, ref: 23/01286/FUL. We aim to complete the development by March 2026.
More information on the Town Deal can be found here.
Ferney Lee homes and Entreprise centre visuals
Ferney Lee site plan
The Enterprise Centre
The Enterprise Centre (EC) will be a core part of the regeneration of the heart of Todmorden through the creation of high specification workspace available on flexible terms. The EC will be developed and run by our social enterprise subsidiary, CVCLT Enterprise Limited.
The EC will support new high-quality jobs, reducing economic inequality and supporting local initiative. By creating a home for 21st century jobs in Todmorden, jobs that can provide work for our young people who move away to study and want to return to live and work. There are many people working in their attic or bedroom, or and the affordable office space will give them an opportunity to separate work and home life.
Sustainability is at the heart of our designs for both offices and homes. Well insulated, low energy, renewable energy and respecting nature are key elements of this project.
Ferney Lee Entreprise centre visuals
Timeline
October 2023 – carry out the site surveys.
November 2023 – carry out consultation.
December 2023 – submit a planning application.
Summer 2024 – decision on the planning application.
January 2025 – appoint contractors and begin the build.
March 2026 – complete the build.
April 2026 – people and businesses move in
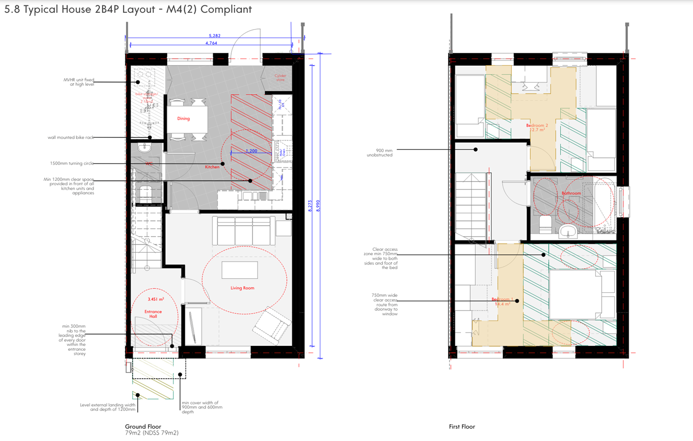
19 Affordable homes
Sites for community-led housing in the upper valley are scarce and unaffordable for the CLT. However, taking on the development of the EC gave us access to a flat site on a long lease. As a result we plan to build 19 homes in partnership with Connect Housing, all for affordable rent.
Our plan is for two blocks of mixed size homes totaling:
- 9 x 2 two-bedroom/4 person homes;
- 10 cottage flats comprising:
- 5 x 1 bedroom, 2 person apartments
- 5 x 2 bedroom, 3 person apartments.
The homes will deliver a high level of sustainability, built to Passivhaus standards; meaning low energy use, low levels of embedded carbon, high level of thermal insulation and air-tightness. The homes will be powered and heated with air source heat pumps, solar panels and offer electric car-charging.
Connect Housing will handle the build phase, and then manage them when occupied. At the end of the project we hope that CVCLT will own one block of homes, and Connect the other. They will be let via the council’s Keychoice system to local people in identified housing need.
The homes will be funded in part by Homes England through the Affordable Homes Programme (2021/2026) and should remain affordable rented in perpetuity.
over 100 people attend Consultation event
Over 100 people attended the consultation event on 22nd November 2023 to view plans and drawings for the exciting new enterprise centre project, incorporating affordable rented homes, proposed for the Ferney Lee site.
Team members and trustees of Calder Valley Community Land Trust and their development partner Connect Housing listened to ideas and comments from local people.
The event proved highly constructive in that we implemented changes to the plans during the event itself in direct response to comments from residents.
This 3D model helped people visualise our plans.
Residents living on Ferney Lee Road shared their concerns about a shortage of parking in their neighbourhood and were concerned that our development did not create overspill parking. A redesign has increased onsite parking by 10%.
Traffic concerns shared by Harehill Street residents meant we changed a vehicle entrance to a pedestrian only entrance. At the suggestion of Lee View Court residents we relocated a bin store.
The most popular aspect of the plans related to our retention of most of the trees and improvement of a green space for communal use. Other aspects that proved popular were that the site will be community owned and run, the inclusion of affordable rented homes, the sustainable design and the opportunity for vibrant working spaces in the enterprise centre.
We heard about existing drainage problems in the wider area and whilst we can’t address those directly, we can ensure our design does not make that problem worse. Our development will have porous surfaces to absorb rainwater, rather than create run-off and during heavy rainfall, water will be held in underground attenuation tanks for slow release over a long period of time so as not to overwhelm local drains and watercourses.
The project has been made possible by the huge contribution of Calder Valley Community Land Trust’s volunteers and is underpinned by a community asset transfer of the land from Calderdale Council, town deal funding secured by the Todmorden Town Deal Board from the Department for Levelling Up, Housing and Communities and a development partnership with Connect Housing.
For information on Todmorden Town Deal, visit www.todmordentowndeal.co.uk
Our public consultation document can be found here 2023-10 Ferney Lee Site Public Consultation Presentation_P04 FINAL.PDF.
For further updates sign up for our newsletter and follow our social media pages and website.
Take a look at our achievements so far CVCLT_Annual_Review_2022-23.pdf.
Membership of the land trust costs £1 and is open to anyone who supports our aims. Join here.
Follow Us
Who we are:
Calder Valley Community Land Trust was established in 2014 by local volunteers wanting to address the need for more affordable rented sustainable housing in the Upper Valley. CVCLT has over 300 members and you can join here https://staging.caldervalleyclt.org.uk/get-involved/ and sign up for our newsletter here https://staging.caldervalleyclt.org.uk/our-news-and-events/.
The local community’s trust in our work has led to people investing £366k in community shares, gifting Fielden Hall in Todmorden, gifting land, leaving a legacy and more.
Our development partner, Connect Housing, is a charitable housing association providing over 3,500 affordable homes and housing related support services across West Yorkshire. They promote diversity and inclusivity, and support housing for various age groups making all people valued.
Together, the 2 organisations have also secured planning permission for 20 affordable rented homes in Hebden Bridge.